MENU
  • Loading ...
  • Loading ...

Coorong Waterfront Retreat

Meningie, SA

Address: 442 Seven Mile Road, Meningie SA 5264

About Coorong Waterfront Retreat

Book Direct with the Owner at Coorong Waterfront Retreat in Meningie with Accommodation Port Macquarie for all your holiday and travel needs.

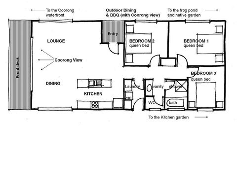
Coorong Waterfront Retreat is one of a few properties directly overlooking the Coorong National Park, a 140km stretch of RAMSAR listed wetland of international significance. Birdlife is a feature of the Park, in particular during spring and summer when international shorebirds arrive from as far as Siberia. The comfortable interior of the house provides the perfect retreat after kayaking, trekking or generally exploring the Park. It’s also a relaxing refuge from the pace of city life with all the comforts of home.

Featuring a garden, Coorong Waterfront Retreat offers accommodations in Meningie. This beachfront property offers access to a patio, free private parking, and free Wifi. The vacation home also offers facilities for disabled guests.\n\nOffering a terrace with sea views, this vacation home also has a flat-screen TV, a well-equipped kitchen with a dishwasher, an oven, and a microwave, as well as 1 bathroom with a walk-in shower and a hair dryer. There\'s also a seating area and a fireplace.\n\nGuests can make the most of the warm weather with the property\'s barbecue facilities.\n\nThe area is popular for canoeing and hiking, and free use of bicycles is available at the vacation home.\n\nAdelaide Airport is 104 miles away.

 
Booking.com

Coorong Waterfront Retreat

Accommodation Port Macquarie welcomes Coorong Waterfront Retreat, the ideal Meningie SA Holiday outlet for all the family to enjoy. We have made sure that we have thought of everything you would expect from your vacation with many features, click on the email or phone now button to get in touch with the owner.

Is Coorong Waterfront Retreat in Meningie your property on Accommodation Port Macquarie, please claim your listing and subscribe to pay no commission plus update your contact details to receive your phone calls and emails from your clients.


Coorong Waterfront Retreat

Click the below to email this business

Email Business

Thank you!

Your enquiry has been submitted

Please fill out the form below to send an enquiry to this business

Accommodation Port Macquarie displayed beautifully on multiple devices

Unlock the Full Potential of Your Business with
Accommodation Port Macquarie

  • Rectify inaccuracies in your listing via Accommodation Port Macquarie
  • Turn on the Call Now Button to directly receive customer calls.
  • Enable the Visit Website Button to drive a continuous flow of traffic to your site.
  • Enable Email Button to effortlessly gather your clients' email addresses.
Claiming or adding your listing not only grants you access to missed call alerts and client emails via Accommodation Port Macquarie but also connects you with over 500 partner sites. This strategic move amplifies your client engagement and boosts your visibility on Google, social media, and within the QLD Tourism ecosystem

copyright © 2026 Accommodation Port Macquarie.   All rights reserved.

A B C D E F G H I J K L M N O P Q R S T U V W X Y Z